O projeto de entrada de energia elétrica é obrigatório para qualquer nova instalação ou reforma que envolva o fornecimento de energia pela concessionária.
Este projeto, elaborado por engenheiro habilitado, deve ser submetido à análise prévia da distribuidora para validação e autorização do ponto de entrega, conforme as exigências legais.
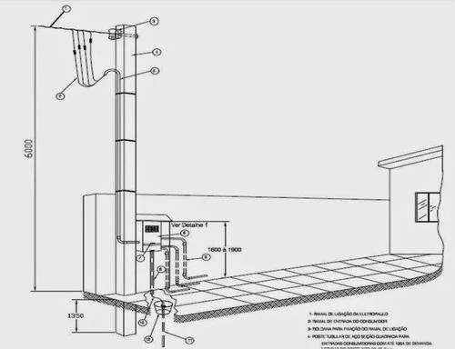
A definição da entrada depende da demanda elétrica e do perfil da instalação. Em Baixa Tensão (BT), o padrão abriga o medidor e os dispositivos de proteção gerais, como disjuntores ou fusíveis, e atende cargas menores, comuns em comércios ou residências de maior porte.
Já em Média Tensão (MT), utilizado por empreendimentos com elevada carga instalada, é obrigatória a implantação de uma cabine primária. Essa estrutura contém o medidor, os sistemas de proteção e o transformador que converte os 13.800V para tensões mais baixas, como 220V ou 380V.
Todas as etapas do projeto devem obedecer às normas técnicas específicas da concessionária de energia da região, além das diretrizes da ABNT, normas internacionais e resoluções da ANEEL.
A elaboração do projeto de entrada de energia inclui a seleção de materiais, definição dos condutores, proteção, seccionamento e posicionamento físico dos componentes.
Confira abaixo alguns dos pontos críticos avaliados durante a aprovação:
A equipe técnica da Energia SP desenvolve projetos de entrada de energia elétrica sob medida, com foco em precisão, agilidade e conformidade com as exigências legais.
Oferecemos assessoria completa, desde a concepção até a aprovação junto à concessionária, assegurando uma implantação segura e eficiente para sua operação. Solicite uma proposta personalizada para o seu projeto.